Clubhaus
Berlin Wannsee
2016-2022
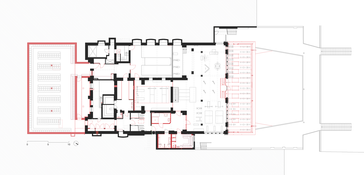
Der Umbau des historischen Clubhauses stellt mehr Fläche für den Sportbetrieb bereit. Um die ehemalige Umkleidehalle für den Indoor-Sport nutzen zu können, wird die Umkleide mit den historischen Schränken in einen unterirdischen Anbau verlegt. Ein wintergartenartiger Abbau ergänzt das Clubhaus um Trainingsgelegenheit an Rudergeräten. Eine Vielzahl von Einzelmaßnahmen ertüchtigt das Gebäude entsprechend der heutigen Anforderungen an den Brand- und Wärmeschutz. Die Eingriffe wahren die historische Erscheinung und schreiben den vorhandenen Charakter mit zeitgenössischen Vokabular fort.










